Обяви За нас Контакти
Продава 2-СТАЕН
град Пловдив, Беломорски
70 100 €
137 103.68 лв.

(1 095 €, 2 141.63 лв./m2)
Цената е с включено ДДС
История на цената
Публикувана в 18:01 на 9 февруари, 2026 год.
Обявата е посетена 44 пъти.
Площ:
64 m2
Етаж:
3-ти от 4
Газ:
НЕ
ТEЦ:
НЕ
Строителство:
Тухла, Ще бъде въведен в експлоатация 2028 г.

Описание на имота:


Агенция SUPRIMMO: www.suprimmo.bg
БЕЗ КОМИСИОНА!

Представяме двустаен апартамент в нов комплекс, в кв. 'Беломорски'. Удобна локация близо до автобусна спирка на градския транспорт.

Строителството стартира в края на 2025 г., достигане на груб строеж до края на 2026 г., а Акт 16 се очаква в средата на 2028 г.

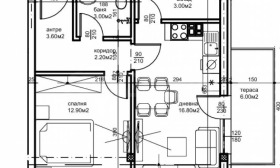
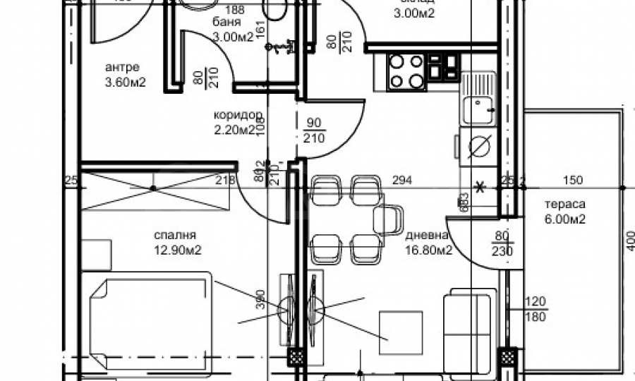
Жилището с обща площ от 64,23 кв.м е разположено на 3-ти етаж от 4.

Комплексът се състои от 5 самостоятелни жилищни сгради, всяка с партер и 3 жилищни етажа с асансьор. Предлага различни по-големина едностайни, двустайни и тристайни апартаменти. Пространството около сградите е решено с паркоместа и озеленяване.

Имотите се предават в степен на завършеност по БДС, на шпакловка и замазка.

Технически характеристики на сградите:
конструкция - монолитна стоманобетонна конструкция с външни 25 см тухлени стени с ефективна топлоизолация;
външна топлоизолация - 10 см;
PVС дограма;
входни врати - блиндирани, пожароустойчиви;
вътрешни стени и таван - гипсова мазилка, под - циментова замазка;
ВиК инсталации - водопровод - полипропиленови тръби, канализация - PVC тръби;
ел. инсталация - трипроводна, хоризонтална и вертикална разводка с монтирано апартаментно табло;
слаботокови инсталации - изградено окабеляване за кабелна телевизия, телефон, интернет и домофонна инсталация;
отоплителна инсталация - изградени трасета за климатици;
висококачествени електрически асансьори с безмашинни помещения и луксозни кабини;
общи части - напълно завършени по проект;
плоски покриви с хидроизолация;
фасада - завършена с топлоизолация и полимерна мазилка;
тераса - настилка гранитогрес;
стълбище - завършено с настилка и алуминиев парапет.

Схема на плащане:
резервация - 2000 eвро;
при подписване на предварителен договор - 30%;
преди Акт 14 (на втора плоча) - 20%;
Aкт 14 - 20%;
след Aкт 14 (три месеца след Акт 14) - 20%;
Акт 15 - 10%.

За повече информация, моля свържете се с нас.

За повече информация свържете се с нас и цитирайте референтния номер на имота. Моля, кажете, че сте видeли обявата в този сайт.
Референтен номер: PLV-137788
Тел: 0884 015 441, 032 349 626
Отговорен брокер:Сашо Димитров
Без комисиона от купувача
Особености
Тухла
Асансьор
За контакт:
0884015441
Брокер:
Сашо Димитров
0884 015 441
Още оферти от брокера: Продава | Дава под наем | Купува | Наема
Агенция:
СУПРИММО ПЛОВДИВ
0887 306 608
СУПРИММО ПЛОВДИВ logo
Медал за прослужено време
В imot.bg от 2023 г.
suprimmoplovdiv.imot.bg
Адрес:
област Пловдив, гр. Пловдив, ул. Кръстьо Раковски 23 -партер, кв. Хр. Смирненски , (Plo
http://www.suprimmo.bg
ИЗПРАТИ ЗАПИТВАНЕ
ИЗПРАТИ ЗАПИТВАНЕТО

Продава 2-СТАЕН
град Пловдив, Беломорски
Обява: 1b177065291502831

70 100 €
137 103.68 лв.
История на цената
(1 095 €, 2 141.63 лв./m2)

Цената е с включено ДДС
ЗАПАЗИ ОБЯВАТА

Местоположение: град Пловдив, Беломорски

Допълнителни данни за имотите в района и сравнение с други райони

Покажи

Период

и 2 месеца

* Средните цени са определени чрез медианна стойност